top of page
RONGDA TAO
Home
About
Spatial Design
Trippen
City Oasia
MountScope
Haworth Sponsor Studio
Solar Hotel
Contemporary Root
Media Design
P5JS project
CT 2022
Arduino processing
Prototyoe
Dev studio 1 project 2
Dev Studio 2 project
Grad Lab 1 project
Old work
Proximity
Animation
Scene Design
Photography
Mass Surveillance
更多
Use tab to navigate through the menu items.
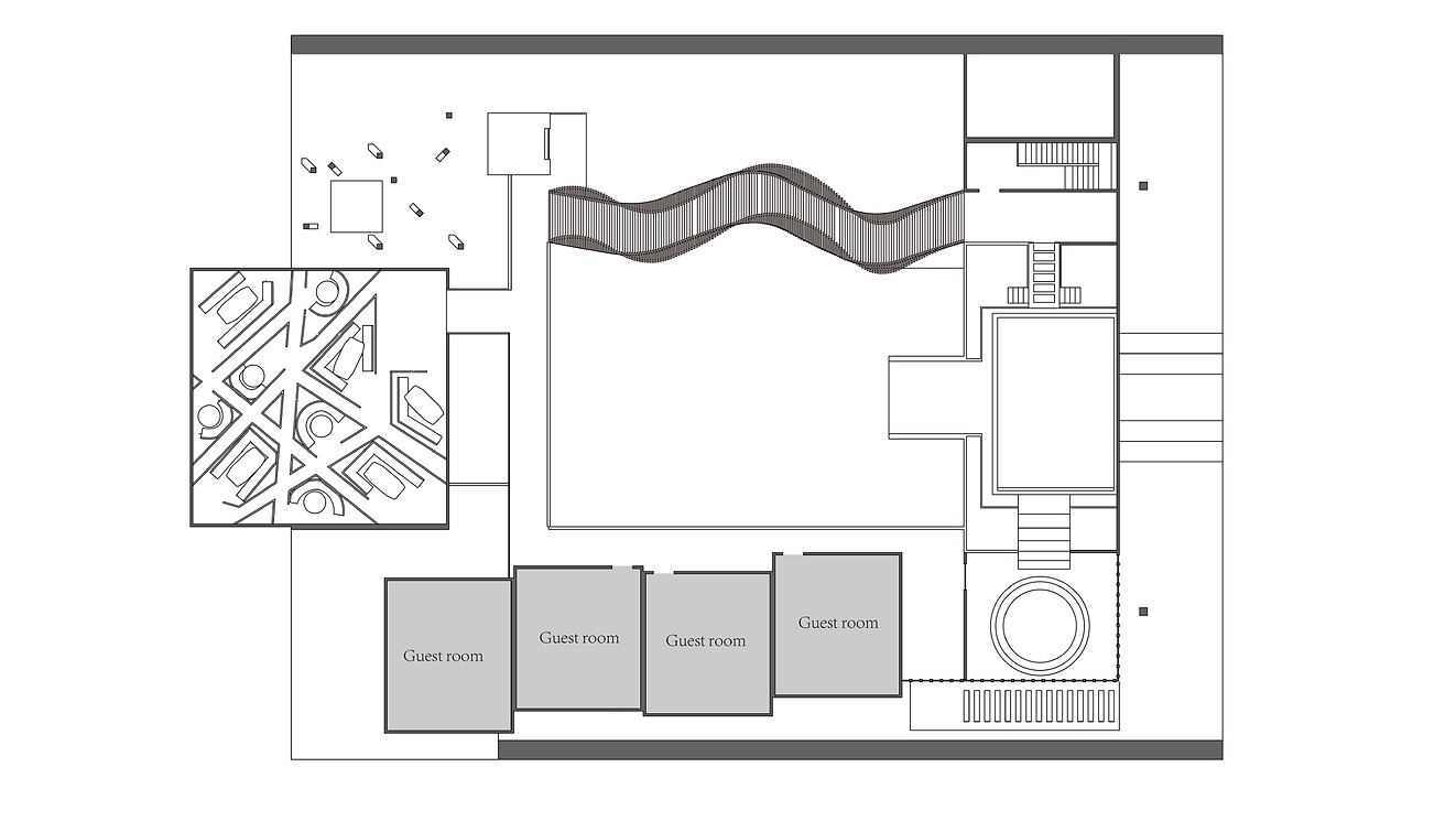
Second floor
Public Space
Regular Guestroom
Suite Guestroom
bottom of page